東方之珠,重現浦江情懷——融創濱江壹號院大區

留聲機里的浦江情懷是“浮云散,明月照人來,團圓美滿今朝醉”,纏綿婉轉、余味悠長;作家筆下的浦江情懷是是十里洋場里的流光溢彩,婀娜多姿、顧盼生輝;而在當代景觀設計師的眼中,浦江情懷應是神秘而大氣,低調而精致的生活場景,可以讓居住在這里的每一位業主都能感受到尊貴的歸家體驗。
項目概述
該項目位于上海市黃浦區,臨近徐匯濱江、北外灘、世博會博物館等,橫向展開的現代建筑幕墻使其具有絕佳的觀賞江景的視角,項目地域的唯一性決定了其定位即為打造出浦西最后一處集奢華、神秘、低調為一體的人文居所。通過對空間的合理組織以及對細節的細致推敲,最終打造出一個彰顯品味、精致奢華、雍容典雅的理想生活名邸。
本次設計范圍為:濱江一號院二期工程的三進庭院軸線景觀,以及周邊附屬功能活動區塊。如何在三進庭院軸線空間中營造出尺度親切、空間豐富的景觀感受,成為本次設計重點要解決的問題。

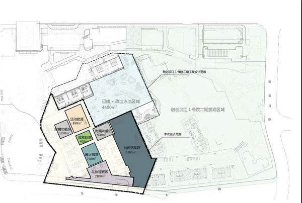
△大區功能分析圖
分區設計
整個空間分為入口、一進院、二進院、三進院、后庭五部分,以現代手法融合海派庭院空間,將傳統庭院之風雅、結構之巧妙完整地表達出來。在空間上層層遞進,相互滲透,深遠而富有層次。

△彩色平面圖

△景觀體驗分析


入口
作為小區人車通行的主要出入口,設計既解決人車的流線管理問題,通過流線的合理設置,實現人車分流,同時又選用質感高級的材質,配合水景,為業主營造出尊貴、富有儀式感的歸家體驗。入口LOGO景墻營造出厚重、典雅的氣場,景墻下方跌水激蕩,迸濺起水花,讓大氣端莊的入口增添靈動的氣息。為了達到最佳的入口景觀效果,設計經過了多輪不同的方案比選,最終確定這版以石材為主要材質的入口形式,彰顯項目低調、奢華、神秘、大氣的氣質。

△入口方案手稿

△入口方案草模一

△入口方案草模二

△入口方案草模三

△入口方案草模四

△入口方案草模五





落客區的設計參仿酒店落客區的處理,中心水景如一方墨硯,將人車流線巧妙地劃分開來。流水經打磨圓潤的邊緣滑落至其下礫石,一棵造景樹靜立水中,為這一片靜謐與莊嚴增添了一抹鮮亮的色彩。





一進院
走進一進院,一面平靜無紋的鏡面水景展于眼前,天光云影,落英翩然,徘徊共舞,宛如畫意。漫步于水邊連廊,陽光透過格柵連廊傾落下來,光影黑白交錯,充滿了節奏韻律之美,像是地面上鋪展開的琴鍵,隨時間流淌出動人的音符。經由格柵連廊,可以進入到入戶空間。在入戶空間中,設計師通過采用跌水、多層級綠植等形式,打造出精致而又大氣的入戶景觀。








二進院
二進院以干凈的陽光草坪和造型雕塑作為主要景觀元素。草坪中間的特色雕塑“水波球”,猶如東方的明珠,位于視覺的焦點,反射出周邊的生活場景,營造出靜謐、溫馨的氛圍。色調高級、質感細膩的金屬材質,增添了場地整體的精致感,并與現代風格建筑外立面風格相協調統一。




三進院
三進院以高低錯落的復層栽植以及開闊的陽光草坪作為主要景觀元素,并作為架空層室外會客廳的外延擴展,為住戶提供駐足觀景、休閑交談的宜人空間。陽光、鳥鳴、流水、綠植……共同營造出這片閑適恬靜、自然溫馨的空間,是人們沐浴午后陽光、聞草、聽風的適宜場所。


后庭
如果說前三進院落為業主打造的是一條充滿儀式感的歸家禮儀軸線,那么后庭空間則是為業主打造出一條溫馨精致的生活軸線。在后庭區域,主要設置有禪境觀賞區、兒童活動區以及停留休息區。
禪境觀賞區以陣列栽植的烏桕作為點,以鏡面水景作為線,以越秀木鋪裝作為面,寥寥數筆,勾勒出一個極具禪意的半圍合靜思休息空間。


兒童活動區以兒時記憶“七巧板”作為設計靈感,結構簡潔,色彩輕快,巧妙的分割與組合,使平面抽象成為一個有節奏、有動感的畫面。四周以多層綠籬進行圍合,模擬原生自然環境,為兒童提供一種親近自然的游玩感受。活動場地結合形式活潑的滑梯、秋千、特制攀爬構架等兒童游戲設施,使空間增加了許多趣味性和故事性,形成看似獨立卻又可相互結合的游戲空間,讓天馬行空的孩童在這里創造自己的冒險故事。在兒童活動區周邊,還設置有洗手臺、嬰兒車擺放點、看護廊架,確保兒童可以在一個安全的環境中自由玩耍。



緊鄰兒童活動區南側,是一片干凈寬敞的陽光草坪,四周以多層次的綠植進行圍合。這片區域作為兒童活動區的延伸,為兒童親近自然、親近綠色,為家庭進行親子互動提供了一個健康自然,寬敞溫馨的空間。周邊擺放休息座椅,為社區打造出一處溫馨、愜意、具有一定私密感的綠色室外小客廳,為住戶提供一個可以休閑賞景、交流互動的舒適空間,便于鄰里在此進行休息、溝通。而在兒童區北側,即為泳池區,共同構成該住宅區內的一條溫馨、自然的生活軸線。


結語
猶記黃浦江上華燈初上
我閉上眼在這里與你遙遙相望
帶我夢回浦江,回到我心之所向
上海融創濱江壹號院作為作為融創高端的人文居所作品,于細微之處體現關懷,經過融創團隊和設計師多年的用心打磨和推敲,正如一顆豐潤飽滿、璀璨奪目的明珠,在浦江江畔綻放出她耀眼的光芒!

項目信息
項目名稱:上海融創濱江壹號院
項目地址:上海市黃浦區中山南一路500號
開發商:融創集團
景觀設計:朗道國際設計
建筑設計:goa大象設計
攝影:Holi河貍景觀攝影
編輯:liqing
相關閱讀
江蘇揚州:今年實施五大攻堅行動提升城市綠化
城市道路綠化增綠行動。利用今年春季綠化黃金季節,針對城市道路綠化達標率、林蔭路覆蓋率等指標,全面開展道路綠化增綠提綠補綠,重點對87條道路的行道樹“有綠無蔭、有景少蔭”、綠化品種單一等問題進行整改,形成配置合理、錯落有致、層次清晰的道路綠化景觀【詳細】
北京昌平新城東區將打造濱水商業消費新地標
昌平新城東區位于昌平區南邵鎮,規劃建設用地面積11平方公里,規劃人口12萬,圍繞打造首都北部消費新地標編織街區控規已獲批。未來,昌平新城東區將打造成為京北體驗消費示范區、山水宜居典范城區、高水平綜合服務承載區和智慧產研創新園區【詳細】
南寧園博園舉辦“禮樂園博·南寧花朝盛典”
活動期間,南寧園博園還舉辦了漢服新秀大賽、同袍巡游、及笄成人禮、國風婚禮妝照展示、明制婚禮儀式典禮、六藝游園、書畫體驗、國風集市等精彩紛呈的活動,同時邀請眾多知名國風模特參與表演展示【詳細】
成都首屆“最美公園”評選結果出爐
據成都市公園城市建設管理局相關負責人介紹,本次“最美公園”評選范圍包括23個區(市)縣已建成開放的1514個公園,包括綜合公園、口袋公園,還有郊野公園【詳細】



