造園全記錄丨南昌金地金茂正榮悅風華示范區

長廊、霧瀑、倒影,探索光影與景廊的虛實變化,
以現代光影美學塑造尊貴空間,感受景觀之絕妙。
方案回顧

將空間重新打碎、整合,打造一條蜿蜒曲折,移步換景的新生活通道,將周邊破敗的環境隔離開來,營造出一處輕奢時尚的展示區。
城心繁盛處,隱逸歸心境
“城心繁盛處,隱逸歸心境”,展示區通過“穿梭”、“初探”、“入境”、“探索”、“沉醉”及“流連”五個部分的景觀空間,層層遞進,引導人們與空間的互動,以景醉人,讓有限的景觀空間提供居住體驗的無限可能。

輕奢華,新時尚
輕奢主義,代表著“輕負擔高品質”的生活理念,提倡在力所能及的范圍內打造屬于自己的高品質、低調、奢華的生活。它是一種對好生活的向往,注重人內心對自我品位升級的追求。輕奢主義把對生活的不將就、不妥協融入品質景觀設計,從細節中體會質感生活帶來的舒心溫暖。

設計手稿

功能分區

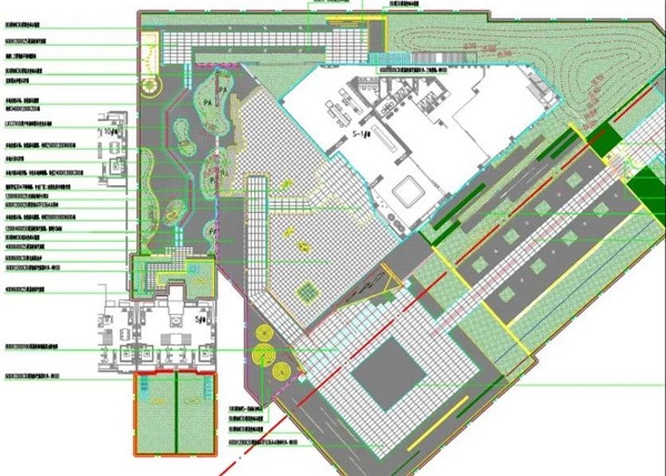
項目總平面圖

示范區航拍
造園過程
硬景推敲

設計物料圖

天然石材 石英磚
對照圖紙分析材料的顏色、效果、成本,確定了最終使用的材質為:石英磚。


夜間施工

完工實景

雨季趕工





鏡面水景施工過程


鏡面水景實景


連廊施工過程



連廊實景
空間采用玻璃磚創造一處豐富靈動的中央水景,穿行于廊架之中,人影、光影、樹影、倒影,真實與真實的投影,象與象的投影,在有限的空間里營造時空的無限幻想。















工藝細節
這個項目雖然不大,但設計新穎、工藝復雜,對施工質量要求很高,一旦施工資源不匹配,管理不善的話,項目的結果可能會受到顛覆性影響。
在材料和工藝上,結合金屬的材料和工藝屬性由專業制作廠家進行二次深化,并對預期效果進行工藝的研究和推敲,針對所有金屬制品進行一輪又一輪的反復打樣推敲。
深化植物
在種植深化中,我們需要解決的是,如何運用高品質苗木實現設計院的設計意圖。

原方案平面

種植施工圖
充分結合我司優勢苗木資源,同時異地號苗,挑選符合設計意圖的樹種。

選苗過程


種植過程



種植實景
軟景從方案優化、苗木選擇、現場種植、效果調整等全面把關。
后庭空間竹影婆娑,形成一種極富節奏感的空間序列。既發揮了空間的遮蔽作用,又制造出欲拒還迎的空間情緒,竹林秘靜流連于此,讓人沉醉。


樹木、砂石、景墻——動與靜、點與面、聚與散,相互襯托。身處自然,感知四季輪回,流連煙雨溪橋醉景,享受一世風雅輕奢生活。


技術實現
場地結合永久使用設計,后期將實現示范區景觀轉變為市民活動場地的功能轉變。在這一過程中,原場地廊架將變身為快速歸家通道,原場地水景將變身為多功能陽光草坪,售樓處將變身公共活動中心。造園過程中景觀設計單位和項目甲方、景觀施工方、材料商、專業加工廠家,建筑設計單位等等都進行了多次的溝通和探討,最終誕生了現在的可拆卸示范區景觀。
景墻可拆卸技術
景墻主體結構采用鋼結構,立面石材采用白木紋背栓式固定,白木紋側面及頂部收口采用不銹鋼鑲嵌。
? 主體構架:通過螺栓連接,實現主體(除基礎外)全部可拆。面層白木紋材料通過背栓式固定實現全部可拆。
? 主體構架:鋼結構構架采用1.5米X1.5米單元式模塊化構架;橫向龍骨采用螺栓連接主體構架上,實現全部拆卸及二次重組。
? 景墻立面:景墻面層材料采用模塊化設計,全部采用背栓式固定,可實現全部拆卸及二次重組。
? 側面及頂面收口:側面及頂面采用不銹鋼卡扣式連接固定,此次專項卡扣式設計便于拆卸及二次重組。
平面鋪裝可拆卸技術
地面鋪裝結構采用懸空鋪貼(又叫懸浮式鋪裝),顧名思義,就是一種磚體與地面不發生直接接觸的鋪貼方式。地磚通過地墊、托盤等支撐物與地面保持一定的距離,具有防濕防潮、減少靜電的效果。同時,懸空鋪貼方便修補整理,遇到損壞的磚片,可以單獨更換。
為了保證平面鋪裝的穩定性,在四個角有支撐器的基礎上,在鋪裝中心增加一個支撐器,并且在支撐器上增加軟膠墊。設計選擇4cm高度的萬能支撐器,避免懸空鋪貼的懸空感且達到最佳的體驗效果。


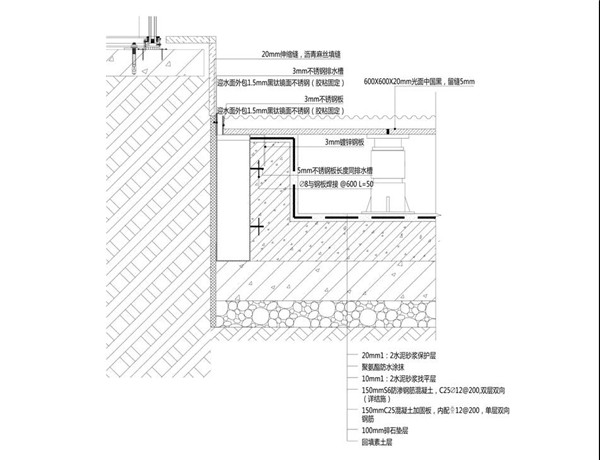
水景可拆卸技術
入口小水景采用整體式不銹鋼水池,水院大水景采用混凝土水池結構配合黑色石材池底及不銹鋼池壁的形式,實現小水景整體可拆,大水景石材及側壁不銹鋼可拆。
? 大面水景:大面水景為保證密封性及整體溢水效果,現階段采用水景結構部分為鋼筋混凝土結構,池底采用石材+支撐器,側壁采用不銹鋼包邊的形式,可實現池底石材及側壁不銹鋼全部拆卸及二次重組。

結語
該項目的高周轉和極限場地、緊張工期、以及連續的雨天,無形中加大了工程難度,但我們一直堅持為創造爆發點而嘗試了很多創新方向。
項目名稱:南昌金茂 · 悅風華
項目地點:江西省南昌市
委托業主:中國金茂
景觀面積:5000㎡
景觀設計:DDON笛東
深化設計、景觀施工:跳馬園林
建筑設計:水石設計
竣工時間:2018年12月
編輯:liqing
相關閱讀
江蘇揚州:今年實施五大攻堅行動提升城市綠化
城市道路綠化增綠行動。利用今年春季綠化黃金季節,針對城市道路綠化達標率、林蔭路覆蓋率等指標,全面開展道路綠化增綠提綠補綠,重點對87條道路的行道樹“有綠無蔭、有景少蔭”、綠化品種單一等問題進行整改,形成配置合理、錯落有致、層次清晰的道路綠化景觀【詳細】
北京昌平新城東區將打造濱水商業消費新地標
昌平新城東區位于昌平區南邵鎮,規劃建設用地面積11平方公里,規劃人口12萬,圍繞打造首都北部消費新地標編織街區控規已獲批。未來,昌平新城東區將打造成為京北體驗消費示范區、山水宜居典范城區、高水平綜合服務承載區和智慧產研創新園區【詳細】
南寧園博園舉辦“禮樂園博·南寧花朝盛典”
活動期間,南寧園博園還舉辦了漢服新秀大賽、同袍巡游、及笄成人禮、國風婚禮妝照展示、明制婚禮儀式典禮、六藝游園、書畫體驗、國風集市等精彩紛呈的活動,同時邀請眾多知名國風模特參與表演展示【詳細】
成都首屆“最美公園”評選結果出爐
據成都市公園城市建設管理局相關負責人介紹,本次“最美公園”評選范圍包括23個區(市)縣已建成開放的1514個公園,包括綜合公園、口袋公園,還有郊野公園【詳細】



